
-
市政设计公司—某餐饮店项目消防设计
2019-05-13
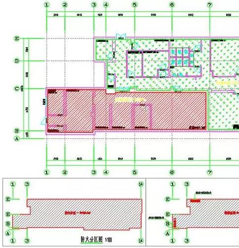
近期,中七设计院承接了北京某餐饮店的消防设计。工程概况:3 原建筑物工程概况:建筑面积1010万平方米;层数:地上1层;建筑高度:7 5m;建筑功能:配套商业;建筑分类:单层民...

-
喜讯!中七审图系统完成信息公示,可承接电子审图业务!
2019-05-06
2019年4月28日,查询中七成都市建筑市场信用信息管理系统(简称:中七审图系统)已完成了最终公示,并初步进行了业务实验,中七已可以承接网上审图业务。 随着政府对无纸化办公的推...

-
建筑设计院-四川某商住楼幕墙设计案例分享
2019-04-25
建筑设计院2019年4月受某房地产开发有限公司委托,承接了该公司某商住楼幕墙设计,项目地址位于四川省南充市。建筑总高度:46 35M,建筑耐火等级:二级,建筑地上11层,总装...

-
速度围观!2019年这些消防相关规范将被修订
2019-04-18
日前,住房和城乡建设部发布了关于印发《2019年工程建设规范和标准编制及相关工作计划的通知》,其中也包括一些与消防有关的部分规范的制定与修订,今天就一起来划个重点以便...

-
内蒙古设计项目备案登记成功
2019-04-15
由于我公司在内蒙古业务量大幅度增加,需要变更、新增项资质人员入内蒙古系统。公司积极准备川外内蒙古变更后,至2019年4月8日,在下属各部门的积极配合下,又完成了内蒙古的...

-
建筑设计-成都某公司钢结构设计
2019-04-11
建筑设计院于2019年3月受成都某装修有限公司委托,承接了该公司的钢结构设计。项目地址位于成都市锦江区,该平台要求承载不小于6吨,梁、柱型钢及连接钢板均采用Q235B,梁柱节点...

-
建筑设计院-贵州某酒店装修及消防设计
2019-04-02
建筑设计院2019年3月受贵州某装修有限公司委托,承接了该公司酒店装修装饰工程改造设计,项目地址位于贵州省贵阳市。本工程1 建筑面积52 15㎡、7 建筑面积48 93㎡、8 建筑...

-
高薪招聘优秀技术人才
2019-03-26
在集团公司的英雄召集令的响应下中七设计公司的专业人才再添一名一级的建筑师,此名优秀的专业人才身兼建筑设计师、工程师的职务。 因集团业务发展需要,现招聘:注册暖...


18782111161
18782111161
226695569


















