本建筑设计院-学校电路设计案例
发布时间:2019-10-17 来源:建筑设计院 设计院 浏览:次
本建筑设计院于2019年7月承接了重庆市巴南区接龙镇某学校校教学楼线路改造配电箱及线路设计工程。

从2019年起重庆市教委开始深入实施对学校各类基础设施的完善工作。依据《教育建筑电气设计规范》JGJ310-2013相关设计文件要求,对该学校教学楼、宿舍楼和楼道内的电路设计进行改造,其改造的项目包括配电箱、弱电、电视、电话、网络以及教学楼通道照明线路的设计,以便为学生和教师提供安全便捷的学习和工作环境。
电路设计说明:

配电系统图:

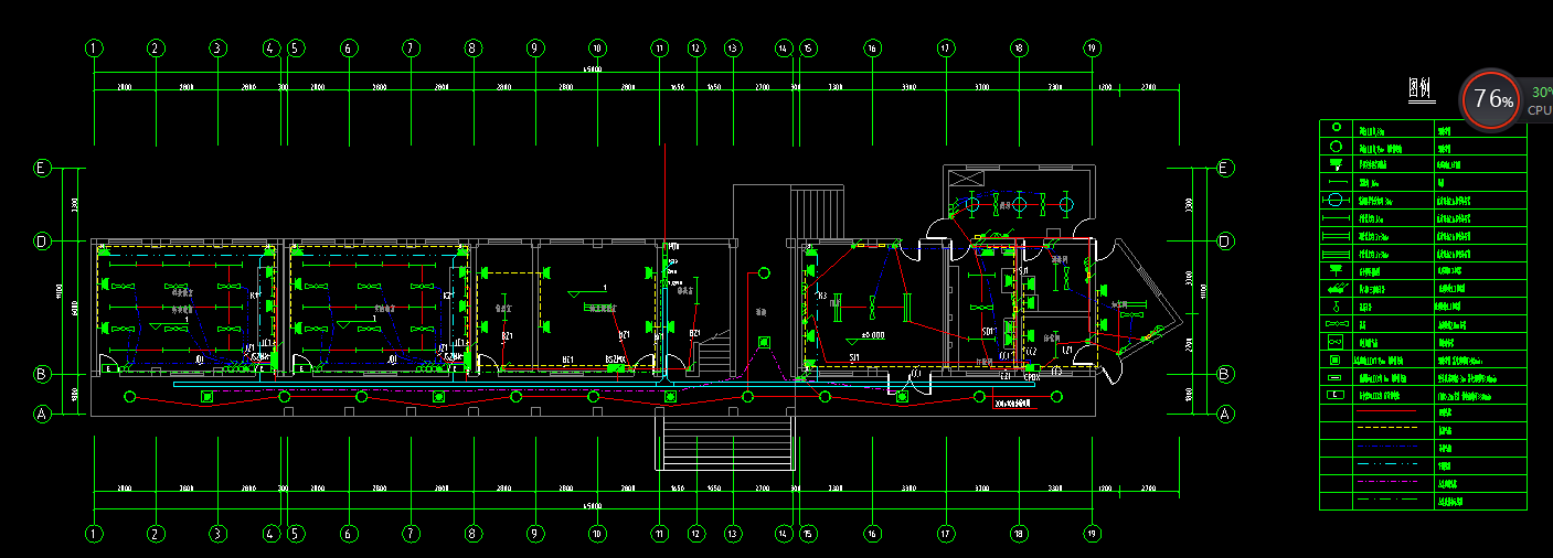
配电照明平面图:

因为学校使用的时间限制,只能在暑假期间进行加急施工,我院设计技术人员从项目勘查到项目竣工联系跟踪项目长达2个月。于2019年8月26日,该学校的所有电路改造已经施工验收完毕,现场所有的验收资料设计单位已经签字验收完成。
上一篇: 收购设计乙级资质
下一篇: 本建筑设计院-陕西备案成功


18782111161
18782111161
226695569


















